
Formalności
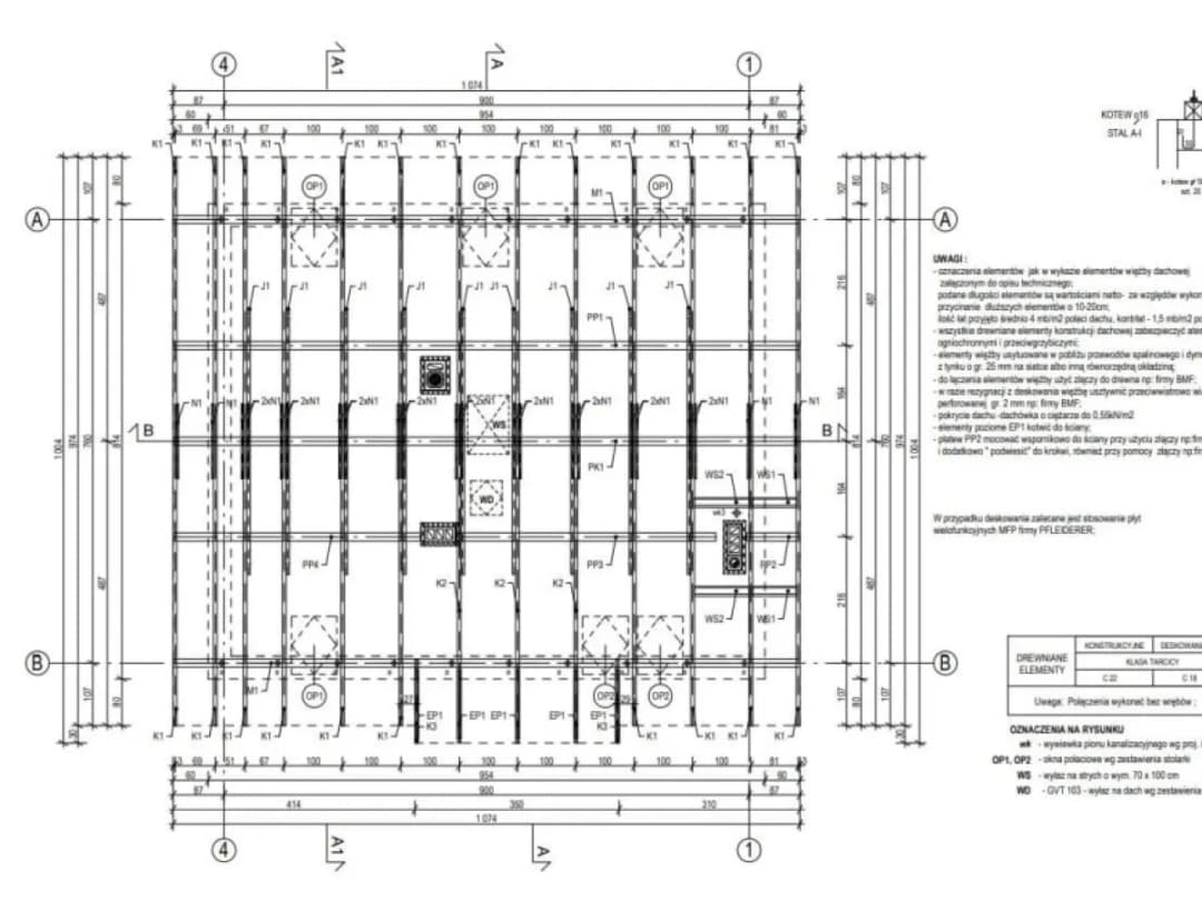
Naucz się, jak czytać rysunek techniczny budowlany i unikaj najczęstszych błędów. Poznaj zasady interpretacji oraz podstawy rysunku dla inżynierów.
Naucz się, jak czytać rysunek techniczny budowlany i unikaj najczęstszych błędów. Poznaj zasady interpretacji oraz podstawy rysunku dla inżynierów.